服务热线 :186-6462-0168 / 020-3221-8320 在我们做公装的过程中,会使用各种不同类型的图纸,这些图纸分别起到什么作用呢?本文采用通俗易懂的方式为大家进行简单的科普。
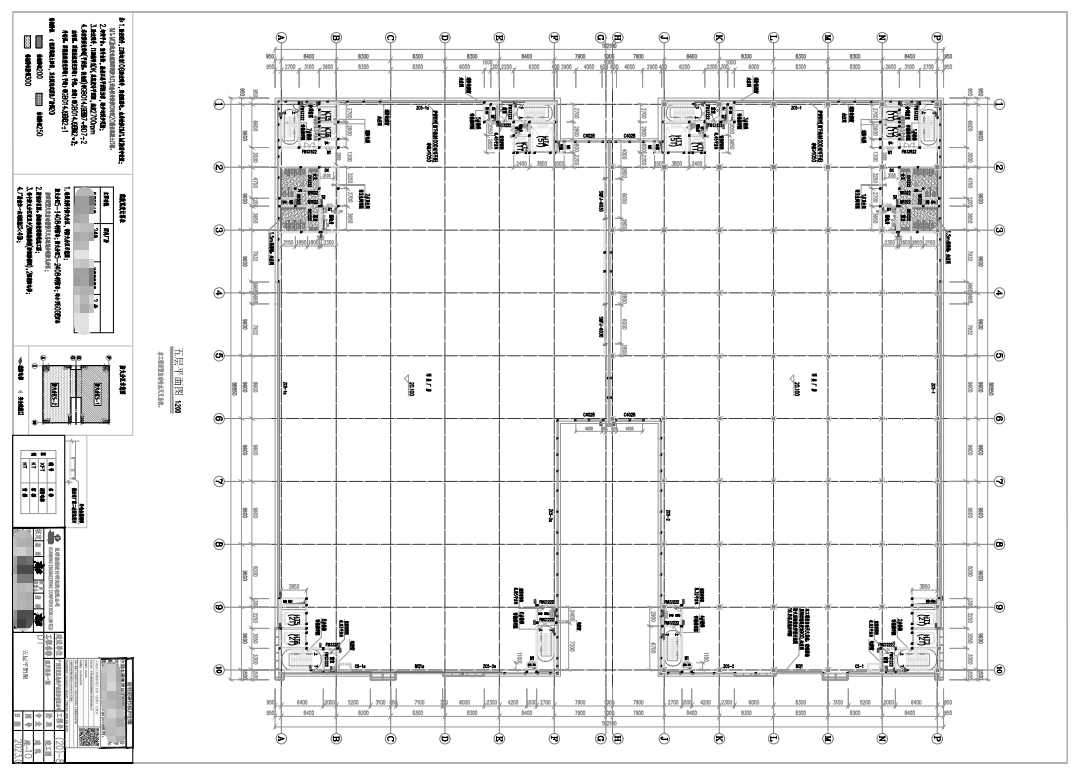
①原始平面图:空间未经改造修饰前的原始图纸,是装修前必不可少的资料,准确的显示了场地的原始空间结构,包含承重墙、柱等重要信息。通常可以找物业获取。

②效果图 (VR图):多客户重点关注的图纸,是最直观呈现设计效果的方式,常见的是空间单图和VR视觉图两种类型,制作成本较高,需要一定的出图周期。(许多客户会误以为凭借效果图就可以进行施工,其实这是一个很大的误区,效果图不能单独作为施工依据)。

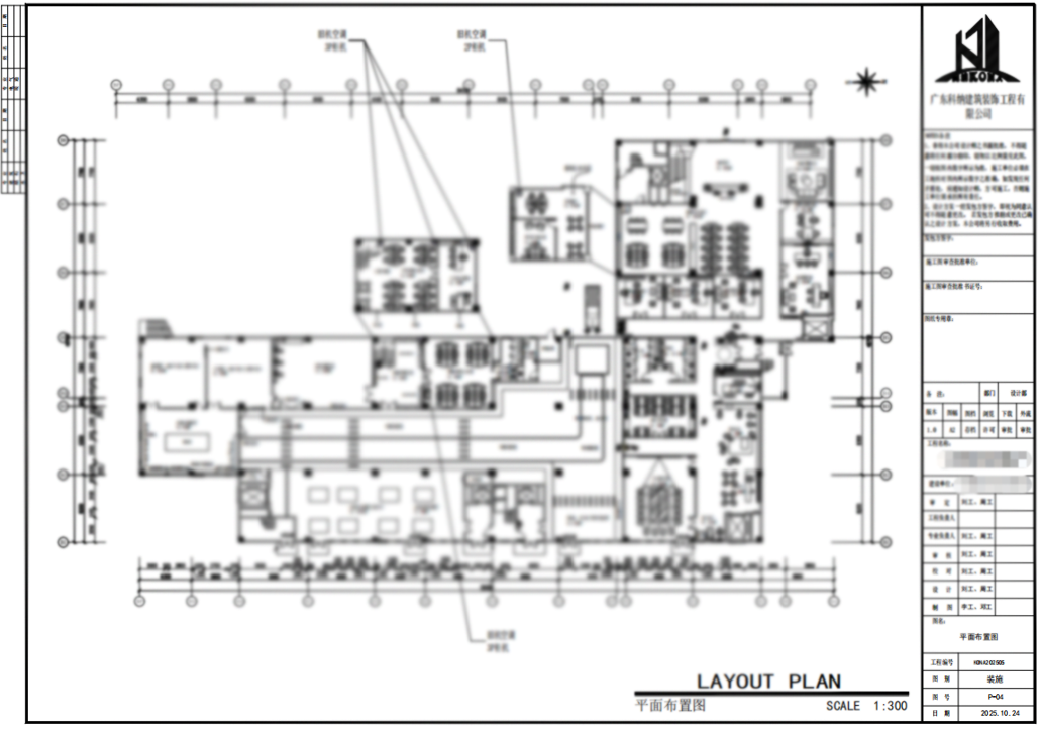
③平面布置图:是空间规划的总纲领,它对每个空间的面积大小、功能定位、动线组织等内容进行了详细规划,是设计装修图纸的重要基础和优化补充。

④施工图:场地施工的重要凭据,记载了详细的施工方式及用料,不能缺少的重要图纸,与效果图配合使用最为理想,需要一定周期出图。(包含天花、地面、墙面、水电、消防、空调等重要部分)。

⑤物料清单:整体项目的材料、家具用量、施工工艺造价等价格明细总表。(需要留意材料工艺是否对版,整体清单是否详细,避免后期出现大量增项)。

⑥蓝图:这里的蓝图不是人们口中的“比喻措词”,而是“图纸最终稿”,蓝图上必须加盖设计单位、注册建筑师、结构师、图审单位等签章。蓝图往往可以保存10年之久,印刷成本较高,通常,只有规范的设计公司和大型工程项目才会为业主提供蓝图,这体现了项目的专业性和严谨性。

以上是装修中常见的几大图纸的详细介绍,选择靠谱专业的设计施工团队,为自己的项目提供有力的保障。